Zhuee design - 诸鄂设计
关于诸鄂
“诸鄂”
设计-
工作流
设计-
服务项目
设计关怀
设计-
适老化
设计-
无障碍
设计-
宠物友好
项目案例
住宅人居
办公空间
商业零售
诸鄂生态
全屋定制
灯光设计
软装家居
诸鄂资讯
联系我们
加入诸鄂
项目合作
Zhuee design - 诸鄂设计
关于诸鄂
“诸鄂”
设计-
工作流
设计-
服务项目
设计关怀
设计-
适老化
设计-
无障碍
设计-
宠物友好
项目案例
住宅人居
办公空间
商业零售
诸鄂生态
全屋定制
灯光设计
软装家居
诸鄂资讯
联系我们
加入诸鄂
项目合作
你的浏览器版本太低,不支持audio标签
设计-
工作流
首页 /
设计-
工作流
Top
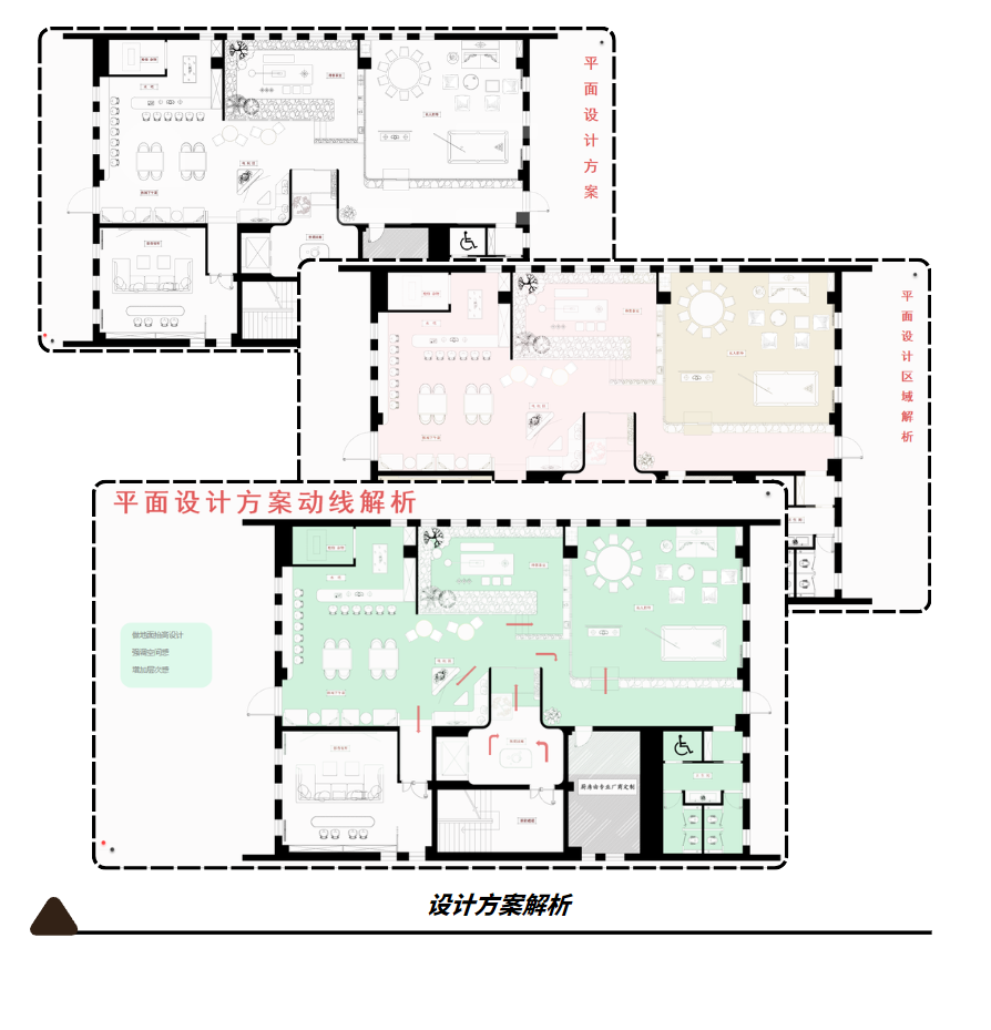
Part.5 设计环节-推敲
2025-03-30
Previous post:Part.4 设计环节-效果方案
Next chapter:Part.6 施工准备环节
Top